Inwentaryzacja architektoniczno-budowlana:
Pomiary architektoniczno-budowlane znajdują coraz szersze zastosowanie nie tylko przy remontach obiektów zabytkowych, ale także przy inwentaryzacji wszelakich obiektów budowlanych, począwszy od domów, budynków, budowli inżynierskich na konstrukcjach przemysłowych i sakralnych kończąc. Pomiar ten wykonywany jest przy użyciu tachimetrów elektronicznych z bezlustrowym pomiarem odległości a także dalmierzy laserowych typu Disto. Inwentaryzacje wnętrz oraz brył budowli, mogą posłużyć nie tylko do samej rejestracji stanu obiektu, ale także do celów studialnych i projektowych.
GeoVertex posiada
doświadczenie nabyte w kraju i za granicą, w przygotowaniu dokumentacji
inwentaryzacyjnej według Polskich Norm do takich zadań jak:
- elewacje zewnętrzne i wewnętrzne
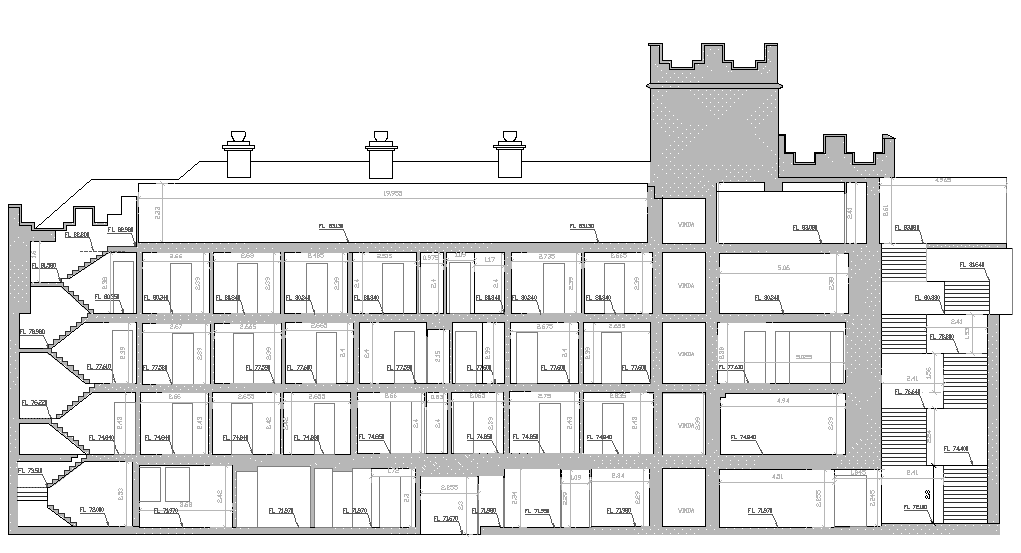
- rzuty kondygnacji od piwnic po dach
- przekroje poprzeczne obiektów
- wykazy powierzchni oraz kubatur
- dokumentacja do wydania zaświadczenia o samodzielności lokalów
mieszkalnych
i
użytkowych
- dokumentacja fotograficzna
Dokumentacja jest sporządzana w formie analogowej lub cyfrowej w wielu dostępnych formatach – DXF, DWG, DGN, JPG, PDF i inne.
Swoją ofertę kierujemy do: biur architektonicznych, rzeczoznawców majątkowych, agencji nieruchomości, developerów, spółdzielni mieszkaniowych oraz klientów indywidualnych.

